Aller au contenu principal

Maison T4 • 88 m² - Les Sables-d'Olonne (85)

NOUVEAU

    Programme en Bail réel solidaire aux Sables d'Olonne
    Programme en Bail réel solidaire aux Sables d'Olonne - Maison en accession sociale
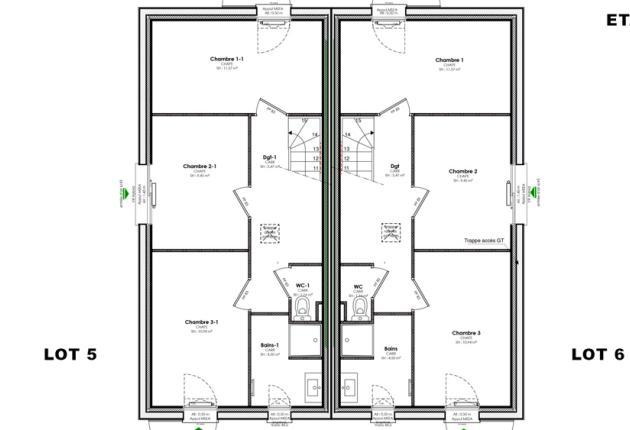
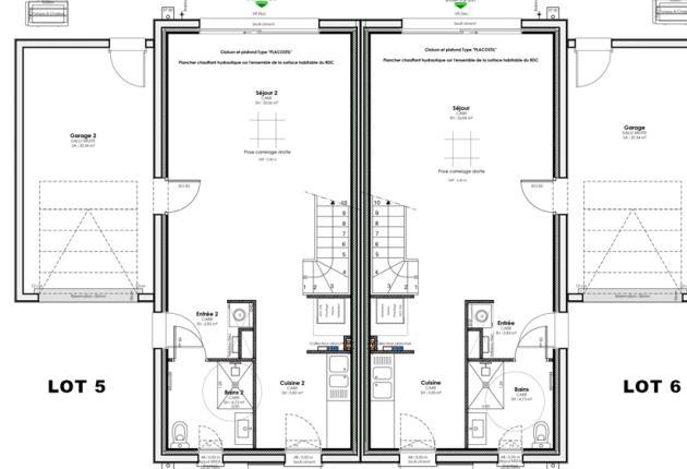
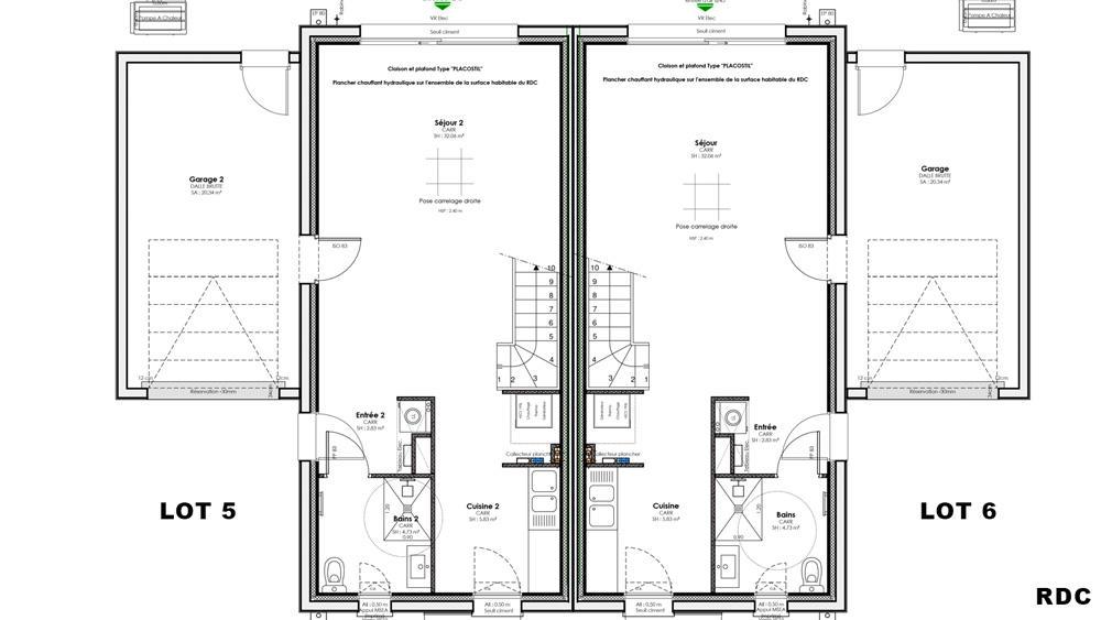
    plan maison accession sociale les sables d'olonne lot 5 et 6  rez de chaussée
    plan maison accession sociale les sables d'olonne lot 5 et 6

Programme "Les Pierrines 2" aux Sables d'Olonne

Maison T4 • 88 m² Les Sables-d'Olonne (85)

225 000 €*

publiée le 15/04/2026

Opportunité rare sur le secteur !

Découvrez ce projet de maison en Bail Réel Solidaire, idéalement situé dans le quartier d’Olonne-sur-Mer, à proximité immédiate du parc de La Jarrie.

Cette maison à étage de 88 m² vous propose :

  • Une belle pièce de vie lumineuse
  • 3 chambres confortables
  • Une conception optimisée pour un cadre de vie agréable au quotidien

Le Bail Réel Solidaire, comment ça fonctionne ?
Ce dispositif vous permet de devenir propriétaire de votre maison à un prix plus accessible. Vous achetez le bâti, tandis que le terrain reste la propriété d’un organisme foncier solidaire.
Résultat : un coût global réduit et une accession facilitée à la propriété, notamment sur des secteurs recherchés.

Vous bénéficiez également :

  • D’un prix d’achat encadré
  • D’une TVA réduite
  • D’un cadre sécurisé pour votre acquisition

Une solution idéale pour concrétiser votre projet de vie, tout en maîtrisant votre budget, dans un environnement calme et verdoyant.

Contactez-nous dès maintenant pour en savoir plus et vérifier votre éligibilité !

Bail Réel Solidaire (BRS)

Visuel non contractuel.
* hors frais de notaire

Obtenir plus de renseignements

Informations

  • Surface jardin 177 m²
  • Surface habitable 88 m²
  • 4 pièces
  • 3 chambres

Chem. du Pass. Renaud
85340 Les Sables-d'Olonne

Contactez-nous pour plus de renseignements

Vous préférez être recontacté par :

* Champs obligatoire
Les informations recueillies à partir de ce formulaire sont enregistrées et transmises à Maisons et Appart’ PrimAccess’ pour traiter votre message dans le cadre de votre demande de contact. Vous disposez d'un droit d'accès, de rectification et d'opposition aux données vous concernant. Pour en savoir plus, consultez notre politique de confidentialité.