Aller au contenu principal

Maison T4 • 88 m² - Les Herbiers (85)

Nouveau

    Programme Domaine du ruisseau de l'Aumarière maison T4 3 chambre à vendre
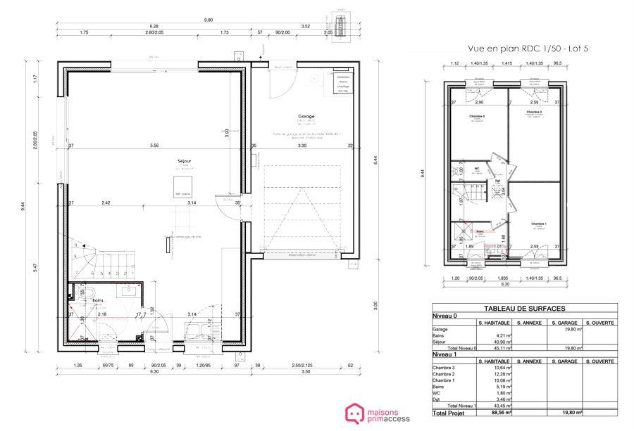
    plan maison location accession les herbiers lot 5 3 chambre avec étage
    Programme Domaine du ruisseau de l'Aumarière maison T4 3 chambre location accession
    Programme Domaine du ruisseau de l'Aumarière maison T4 3 chambre neuve

Programme "Domaine du Ruisseau de L’Aumarière" aux Herbiers

Maison T4 • 88 m² Les Herbiers (85)

224 000 €*

publiée le 21/01/2026

Domaine du Ruisseau de L’Aumarière

Découvrez cette maison individuelle neuve 3 chambres, située aux Herbiers, dans le secteur de L’Aumarière (sud-ouest de la commune), à proximité immédiate des commodités et services.

Proposée en location-accession (dispositif PSLA), cette maison offre une opportunité d’accéder à la propriété de manière progressive et sécurisée.

🔹 Caractéristiques du logement

  • Typologie : T4
  • Surface habitable : 88 m²
  • Garage attenant : 19 m²
  • Parcelle : 375 m²

La maison bénéficie d’une conception fonctionnelle, avec des espaces de vie lumineux et bien agencés, adaptés à la vie familiale.

🔹 Les atouts du PSLA

  • Accession progressive à la propriété
  • TVA réduite
  • Exonération de taxe foncière sous conditions
  • Parcours d’achat sécurisé

📌 Logement soumis à conditions d’éligibilité PSLA.

📞 Pour plus d’informations ou pour étudier votre éligibilité, contactez-nous.

*visuel non contractuels

Location Accession (PSLA)

Visuel non contractuel.
* hors frais de notaire

Obtenir plus de renseignements

Informations

  • Surface jardin 375 m²
  • Surface habitable 88 m²
  • 4 pièces
  • 3 chambres

l'aumarière
85500 Les Herbiers

Contactez-nous pour plus de renseignements

Vous préférez être recontacté par :

* Champs obligatoire
Les informations recueillies à partir de ce formulaire sont enregistrées et transmises à Maisons et Appart’ PrimAccess’ pour traiter votre message dans le cadre de votre demande de contact. Vous disposez d'un droit d'accès, de rectification et d'opposition aux données vous concernant. Pour en savoir plus, consultez notre politique de confidentialité.