Aller au contenu principal

Maison T3 • 67 m² - Les Herbiers (85)

Nouveau

    Programme location accession les herbiers maison 2 chambres
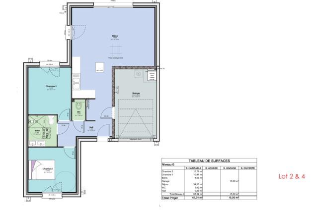
    plan lot 2 et 4 l'aumarière maison location accession les herbiers
    Programme location accession les herbiers maison t3

Programme "Domaine du Ruisseau de L’Aumarière" aux Herbiers

Maison T3 • 67 m² Les Herbiers (85)

180 000 €*

publiée le 21/01/2026

Domaine du Ruisseau de L’Aumarière

Découvrez cette maison individuelle neuve 2 chambres, située aux Herbiers, dans le secteur de L’Aumarière (sud-ouest de la commune), à proximité immédiate des commodités et services.

Proposée en location-accession (dispositif PSLA), cette maison constitue une opportunité idéale pour devenir propriétaire de manière progressive, sécurisée et encadrée.

🔹 Caractéristiques du logement

  • Typologie : T3
  • Surface habitable : 67 m²
  • Garage attenant : 15 m²
  • Superficie de la parcelle : 262 m²

La maison offre une conception fonctionnelle et optimisée, avec des espaces de vie lumineux et bien agencés, parfaitement adaptés à un couple ou une petite famille.

🔹 Les atouts du PSLA

  • Accession progressive à la propriété
  • TVA réduite
  • Exonération de taxe foncière sous conditions
  • Parcours d’achat sécurisé

📌 Logement soumis à conditions d’éligibilité PSLA.

📞 Pour plus d’informations ou pour étudier votre éligibilité, contactez-nous.

*visuel non contractuels

Location Accession (PSLA)

Visuel non contractuel.
* hors frais de notaire

Obtenir plus de renseignements

Informations

  • Surface jardin 262 m²
  • Surface habitable 67 m²
  • 3 pièces
  • 2 chambres

l'aumarière
85500 Les Herbiers

Contactez-nous pour plus de renseignements

Vous préférez être recontacté par :

* Champs obligatoire
Les informations recueillies à partir de ce formulaire sont enregistrées et transmises à Maisons et Appart’ PrimAccess’ pour traiter votre message dans le cadre de votre demande de contact. Vous disposez d'un droit d'accès, de rectification et d'opposition aux données vous concernant. Pour en savoir plus, consultez notre politique de confidentialité.