Aller au contenu principal

Appartement T5 • 104 m² - La Roche sur Yon (85)

NOUVEAU

    Perspective du T5 Duplex du programme Coeur Foch
    Programme "Cœur Foch" à La Roche-sur-Yon
    3d plan duplex coeur foch accession social logement la roche sur yon
    Duplex T5 a vendre en BRS Centre ville la roche sur yon 104 m²
    chambre t5 duplex accession social brs la roche sur yon coeur foch

"Cœur Foch" à La Roche-sur-Yon

Appartement T5 • 104 m² La Roche sur Yon (85)

344 500 €*

publiée le 12/01/2026

Duplex T5 proposé sous le dispositif BRS Bail Réel Solidaire destiné exclusivement à une résidence principale au sein du programme Cœur Foch situé en plein centre-ville de La Roche-sur-Yon

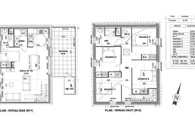
Situé au R+1 Bâtiment B ce duplex offre une surface habitable de 104,49 m² proposant des volumes généreux et une distribution idéale entre espaces jour et espaces nuit.
Il bénéficie d’une terrasse de 16,38 m² complétée par un rangement extérieur de 2,30 m² apportant un réel confort au quotidien.

Agencement

  • 4 chambres
  • 1 salle d’eau
  • Cellier
  • Terrasse de 16,38 m²
  • Rangement extérieur de 2,30 m²

✨ Caractéristiques principales

  • Typologie Duplex T5
  • Surface habitable 104,49 m²
  • Terrasse 16,38 m²
  • Rangement extérieur 2,30 m²
  • Étage R+1 Bâtiment B
  • Dispositif BRS Bail Réel Solidaire
  • Finitions personnalisables carrelage et faïence
  • Matériaux performants et isolation renforcée
  • Toitures végétalisées dans le respect d’une architecture contemporaine sobre et élégante intégrée au centre-ville
  • Parking privé en sous-sol
  • Locaux commerciaux de proximité au rez-de-chaussée

🏡 Performance énergétique et confort

Conforme à la réglementation RE2020 ce duplex garantit d’excellentes performances énergétiques des consommations maîtrisées et un confort de vie optimal.

Le dispositif BRS Bail Réel Solidaire

Le BRS permet d’acquérir votre logement tout en dissociant le bâti du foncier.
Vous devenez propriétaire du logement et versez une redevance mensuelle de 77,32 € à l’OFS Organisme de Foncier Solidaire.

Avantages

✔ Logement réservé à la résidence principale
✔ Conditions de ressources à respecter
✔ Cadre juridique sécurisé
✔ Modalités de revente encadrées

Financements et aides possibles

  • Prêt à Taux Zéro PTZ éligible
  • Action Logement jusqu’à 20 000 € d’aide selon conditions et cotisation employeur

Un duplex spacieux et fonctionnel situé dans un programme moderne alliant performance environnementale qualité de construction et services de proximité en plein cœur de La Roche-sur-Yon.

📞 Contactez-nous pour plus d’informations ou pour vérifier votre éligibilité au BRS et aux aides disponibles.

Bail Réel Solidaire (BRS)

Visuel non contractuel.
* hors frais de notaire

Obtenir plus de renseignements

Informations

  • Surface jardin 16 m²
  • Surface habitable 104 m²
  • 5 pièces
  • 4 chambres

Rue du Maréchal Foch
85000 La Roche sur Yon

Contactez-nous pour plus de renseignements

Vous préférez être recontacté par :

* Champs obligatoire
Les informations recueillies à partir de ce formulaire sont enregistrées et transmises à Maisons et Appart’ PrimAccess’ pour traiter votre message dans le cadre de votre demande de contact. Vous disposez d'un droit d'accès, de rectification et d'opposition aux données vous concernant. Pour en savoir plus, consultez notre politique de confidentialité.