Aller au contenu principal

Appartement T3 • 62 m² - La Roche sur Yon (85)

NOUVEAU

    t3 programme coeur foch brs la roche sur yon
    Programme "Cœur Foch" à La Roche-sur-Yon
    plan interieur appartement t3 62 m² coeur foch centre ville la roche sur yon
    Programme BRS Coeur Foch à La Roche-sur-Yon : chambre contemporaine
    Programme BRS Coeur Foch à La Roche-sur-Yon : salle de bain

"Cœur Foch" à La Roche-sur-Yon

Appartement T3 • 62 m² La Roche sur Yon (85)

212 000 €*

publiée le 12/01/2026

Appartement T3 proposé sous le dispositif BRS (Bail Réel Solidaire), destiné exclusivement à une résidence principale, au sein du programme Cœur Foch, situé en plein centre-ville de La Roche-sur-Yon.

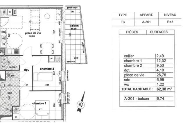
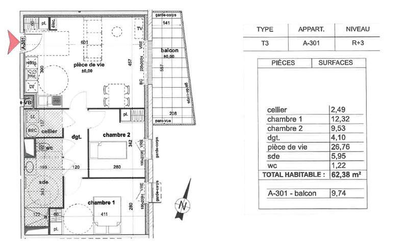
Situé au R+3 – Bâtiment A, ce logement développe 62 m² habitables, idéalement agencés pour un confort optimal, avec un balcon de 9 m².

Agencement :

  • 2 chambres
  • 1 salle d’eau
  • Séjour lumineux
  • Cuisine ouverte
  • Balcon

✨ Caractéristiques principales :

  • Typologie : T3
  • Surface habitable : 62 m²
  • Balcon : 9 m²
  • Étage : R+3 – Bâtiment A
  • Dispositif : BRS (Bail Réel Solidaire)
  • Finitions personnalisables : carrelage et faïence
  • Matériaux performants et isolation renforcée
  • Toitures végétalisées, dans le respect d’une architecture contemporaine, sobre et élégante
  • Parking privé en sous-sol
  • Locaux commerciaux de proximité au rez-de-chaussée

🏡 Performance énergétique & confort
Conforme à la réglementation RE2020, cet appartement assure des performances énergétiques élevées, des charges maîtrisées et un confort de vie optimal.

Le dispositif BRS – Bail Réel Solidaire
Le BRS permet d’acquérir votre logement tout en dissociant le bâti du foncier. Vous devenez propriétaire du logement et versez une redevance mensuelle à l’OFS de 46,16 €.

Avantages :
✔ Logement réservé à la résidence principale
✔ Conditions de ressources à respecter
✔ Cadre juridique sécurisé
✔ Modalités de revente encadrées

Financements et aides possibles

  • Prêt à Taux Zéro (PTZ) éligible
  • Action Logement : jusqu’à 20 000 € d’aide (selon conditions et cotisation employeur)

Un appartement fonctionnel et lumineux, situé dans un programme moderne alliant performance environnementale, qualité de construction et services de proximité, en plein cœur de La Roche-sur-Yon.

📞 Contactez-nous pour plus d’informations ou pour vérifier votre éligibilité au BRS et aux aides disponibles.

Bail Réel Solidaire (BRS)

Visuel non contractuel.
* hors frais de notaire

Obtenir plus de renseignements

Informations

  • Surface jardin 9 m²
  • Surface habitable 62 m²
  • 3 pièces
  • 2 chambres

Rue du Maréchal Foch
85000 La Roche sur Yon

Contactez-nous pour plus de renseignements

Vous préférez être recontacté par :

* Champs obligatoire
Les informations recueillies à partir de ce formulaire sont enregistrées et transmises à Maisons et Appart’ PrimAccess’ pour traiter votre message dans le cadre de votre demande de contact. Vous disposez d'un droit d'accès, de rectification et d'opposition aux données vous concernant. Pour en savoir plus, consultez notre politique de confidentialité.