Aller au contenu principal

Appartement T2 • 49 m² - La Roche sur Yon (85)

NOUVEAU

    Programme BRS Coeur Foch à La Roche-sur-Yon : piece de vie
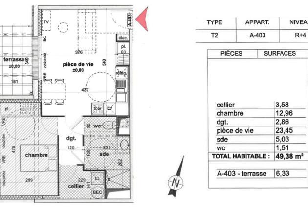
    Plan intérieur T2 49 m² La Roche sur yon Coeur Foch centre ville appartement
    Programme BRS Coeur Foch à La Roche-sur-Yon : chambre cottage core
    Programme "Cœur Foch" à La Roche-sur-Yon
    Programme BRS Coeur Foch à La Roche-sur-Yon : salle de bain

"Cœur Foch" à La Roche-sur-Yon

Appartement T2 • 49 m² La Roche sur Yon (85)

174 500 €*

publiée le 12/01/2026

Appartement T2 sous dispositif BRS – Programme Cœur Foch – Centre-ville de La Roche-sur-Yon

Appartement T2 proposé sous le dispositif BRS (Bail Réel Solidaire), exclusivement destiné à une résidence principale, au sein du programme Cœur Foch, idéalement situé en plein centre-ville de La Roche-sur-Yon, à proximité immédiate des commerces et services.

Situé au R+4 – Bâtiment A, ce logement offre une surface habitable de 49 m², avec une conception fonctionnelle et moderne, pensée pour le confort au quotidien. Il dispose d’une terrasse de 6 m², véritable espace extérieur privatif, rare en cœur de ville.

Agencement :

  • 1 chambre
  • 1 salle de bain
  • Séjour lumineux avec cuisine ouverte
  • Terrasse de 6 m²

✨ Caractéristiques principales :

  • Typologie : T2
  • Surface habitable : 49 m²
  • Terrasse : 6 m²
  • Étage : R+4 – Bâtiment A
  • Dispositif : BRS (Bail Réel Solidaire)
  • Finitions personnalisables (carrelage et faïence)
  • Matériaux performants et isolation renforcée
  • Architecture contemporaine sobre et élégante
  • Toitures végétalisées
  • Parking privé en sous-sol
  • Locaux commerciaux de proximité en rez-de-chaussée

🏡 Performance énergétique & confort

Conforme à la réglementation RE2020, cet appartement bénéficie d’excellentes performances énergétiques, garantissant des charges maîtrisées ainsi qu’un confort thermique et acoustique optimal.

Le dispositif BRS – Bail Réel Solidaire

Le BRS permet d’accéder à la propriété à un prix maîtrisé, grâce à la dissociation du bâti et du foncier. Vous devenez propriétaire du logement et versez une redevance mensuelle de 36,54 € à l’Organisme de Foncier Solidaire (OFS).

Avantages :
✔ Logement réservé à la résidence principale
✔ Conditions de ressources à respecter
✔ Cadre juridique sécurisé
✔ Modalités de revente encadrées

💰 Financements et aides possibles

  • Prêt à Taux Zéro (PTZ) éligible
  • Action Logement : jusqu’à 20 000 € d’aide (selon conditions et cotisation employeur)

Un appartement moderne, fonctionnel et accessible, au sein d’un programme de qualité, offrant un cadre de vie agréable en plein centre-ville de La Roche-sur-Yon.

📞 Contactez-nous pour plus d’informations ou pour vérifier votre éligibilité au BRS et aux aides disponibles.

 

Bail Réel Solidaire (BRS)

Visuel non contractuel.
* hors frais de notaire

Obtenir plus de renseignements

Informations

  • Surface jardin 6 m²
  • Surface habitable 49 m²
  • 2 pièces
  • 1 chambre

Rue du Maréchal Foch
85000 La Roche sur Yon

Contactez-nous pour plus de renseignements

Vous préférez être recontacté par :

* Champs obligatoire
Les informations recueillies à partir de ce formulaire sont enregistrées et transmises à Maisons et Appart’ PrimAccess’ pour traiter votre message dans le cadre de votre demande de contact. Vous disposez d'un droit d'accès, de rectification et d'opposition aux données vous concernant. Pour en savoir plus, consultez notre politique de confidentialité.